物件情報詳細
刈谷市 今川町

- 建築条件付宅地
- 建築条件無宅地
- 残1区画
価格
2,648万円~
- 公園近し
- 南向き
- 学校近し
- 希少
- 日当良好
- 生活便利
- 買物便利
- 通勤便利
- 通学便利
- 閑静地
- 駐車2台可
~生活至便土地~
■小学校まで徒歩約2分♪
■土地は40坪超♪
※建築条件外すことも可能です。
詳しくはお問い合わせください。
| 所在地 | 刈谷市今川町山脇30番2[MAP] | 交通 | 名古屋鉄道名古屋本線「富士松」駅 徒歩約6分 |
|---|---|---|---|
| 敷地面積 | 2号地:138.39㎡ | 学校区 | 富士松南小学校 富士松中学校 |
| 建物面積 | - |
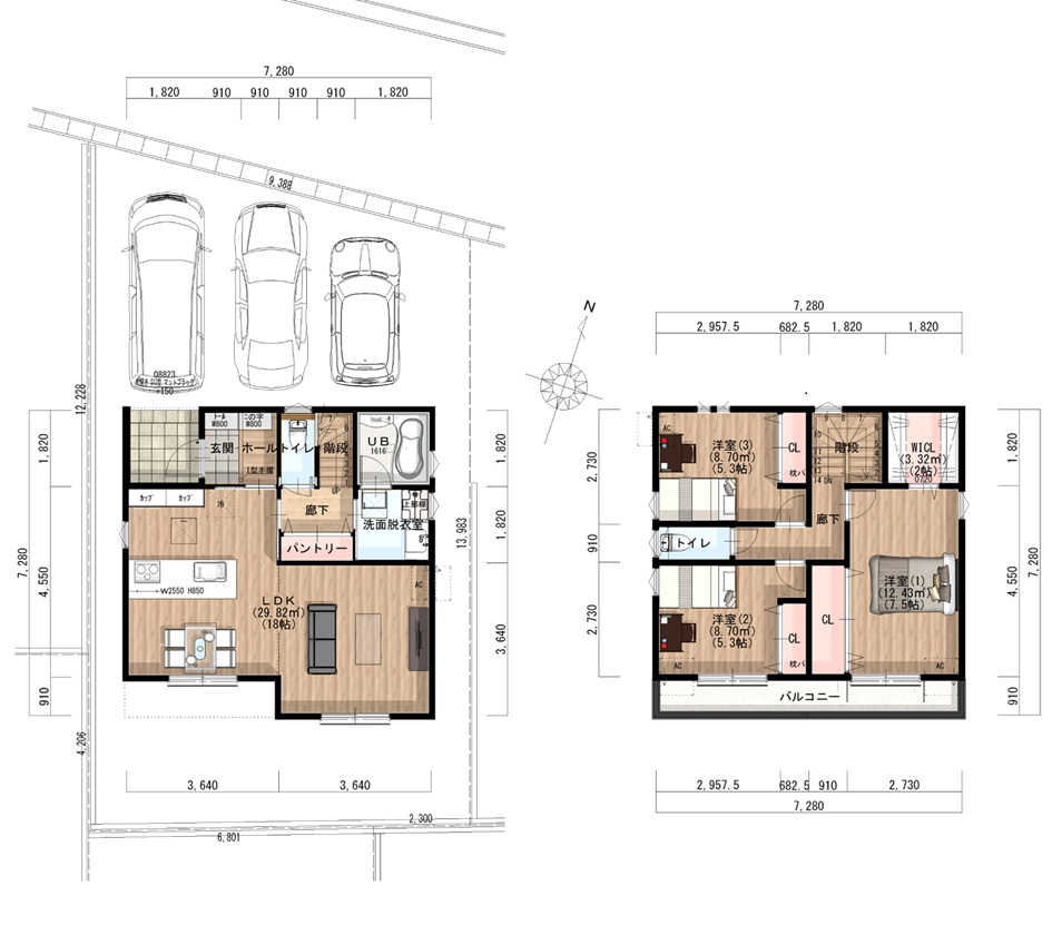
刈谷市 今川町 参考プラン

敷地面積 138.39㎡/41.86坪
建築面積 49.68㎡/15.03坪
床 面 積 92.74㎡/28.06坪
( 1階 46.37㎡/14.03坪 )
( 2階 46.37㎡/14.03坪 )
物件概要
| 総区画数 | 2区画 |
|---|---|
| 地目 | 宅地 |
| 用途地域 | 第一種住居地域 |
| 建ぺい率 | 60% |
| 容積率 | 200% |
| 道路 | 北側公道約4.9m |
| 構造 | 木造2階建(2×4工法) |
| 売主 | 東洋地所 大府営業所 国土交通大臣(12)第2706号 |
その他
・地盤調査費(スウェーデン式サウンディング試験)
・地盤改良工事(DSP柱状改良)
・屋外設備工事
・設計料、確認申請費用(2階建)
・フラット35S対応
・省令準耐火仕様
・住宅瑕疵担保責任保険(JⅠOわが家の保険)
・上下水道本管取出工事
・水道加入金
・造成、外構工事
・居室照明、都市ガス又はオール電化、ペニンシュラキッチン
※上記内容は建物価格に含まれます。
※建築条件外すことも可能です。
詳しくはお問い合わせください。
・地盤改良工事(DSP柱状改良)
・屋外設備工事
・設計料、確認申請費用(2階建)
・フラット35S対応
・省令準耐火仕様
・住宅瑕疵担保責任保険(JⅠOわが家の保険)
・上下水道本管取出工事
・水道加入金
・造成、外構工事
・居室照明、都市ガス又はオール電化、ペニンシュラキッチン
※上記内容は建物価格に含まれます。
※建築条件外すことも可能です。
詳しくはお問い合わせください。
近隣施設
-
名古屋鉄道名古屋本線「富士松」駅
約 470m(徒歩 約6分)
-
富士松南小学校
約 160m(徒歩 約2分)
-
富士松中学校
約1,740m(徒歩 約19分)
-
富士松南保育園
約 55m(徒歩 約1分)
-
富士松南幼児園
約 290m(徒歩 約4分)
-
スギドラッグ富士松店
約 520m(徒歩 約7分)
-
上池児童遊園
約 100m(徒歩 約2分)



