物件情報詳細
名古屋市熱田区 南一番町

- 建築条件付宅地
- 建築条件無宅地
価格
3,598万円~
- 公園近し
- 南向き
- 学校近し
- 希少
- 日当良好
- 生活便利
- 買物便利
- 通勤便利
- 通学便利
- 閑静地
- 駅近
- 駐車3台可
~ 生活至便土地~
■南側公道接道の整形地で明るく閑静な立地♪
■小学校が徒歩約5分とお子様にも安心な通学距離♪
■近隣にはスーパー、薬局、コンビニなど商業施設が豊富♪
※建築条件外すことも可能です。
詳しくはお問い合わせください。
| 所在地 | 名古屋市熱田区南一番町1010番1(1号地)[MAP] | 交通 | 名古屋市営地下鉄名港線「東海通」駅 徒歩約11分 |
|---|---|---|---|
| 敷地面積 | 184.30㎡(55.75坪) | 学校区 | 千年小学校 宮中学校 |
| 建物面積 | - |
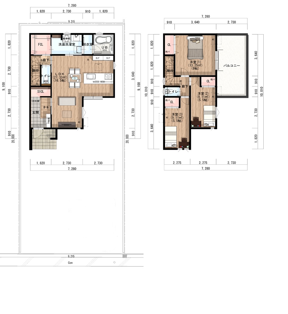
熱田区南一番町 参考プラン

敷地面積 184.30㎡/55.75坪
建築面積 56.31㎡/17.03坪
床 面 積 93.57㎡/28.30坪
( 1階 52.17㎡/15.78坪 )
( 2階 41.40㎡/12.52坪 )
物件概要
| 総区画数 | 1区画 |
|---|---|
| 地目 | 宅地 |
| 用途地域 | 準工業地域 |
| 建ぺい率 | 60% |
| 容積率 | 200% |
| 道路 | 南側公道約7.2m |
| 構造 | 木造2階建(2×4工法) |
| 売主 | 東洋地所 大府営業所 国土交通大臣(12)第2706号 |
その他
・地盤調査費(スウェーデン式サウンディング試験)
・地盤改良工事(DSP柱状改良)
・屋外設備工事
・設計料、確認申請費用(2階建)
・フラット35S対応
・省令準耐火仕様
・住宅瑕疵担保責任保険(JⅠOわが家の保険)
・上下水道本管取出工事
・水道加入金
・造成、外構工事
・居室照明、都市ガス又はオール電化、ペニンシュラキッチン
※上記内容は建物価格に含まれます。
※建築条件外すことも可能です。
詳しくはお問い合わせください。
・地盤改良工事(DSP柱状改良)
・屋外設備工事
・設計料、確認申請費用(2階建)
・フラット35S対応
・省令準耐火仕様
・住宅瑕疵担保責任保険(JⅠOわが家の保険)
・上下水道本管取出工事
・水道加入金
・造成、外構工事
・居室照明、都市ガス又はオール電化、ペニンシュラキッチン
※上記内容は建物価格に含まれます。
※建築条件外すことも可能です。
詳しくはお問い合わせください。
近隣施設
-
名古屋市営地下鉄名港線「東海通」駅
約 850m(徒歩 約11分)
-
千年小学校
約 400m(徒歩 約 5分)
-
宮中学校
約1,700m(徒歩 約22分)
-
愛名保育園
約 700m(徒歩 約 9分)
-
千年幼稚園
約 350m(徒歩 約 5分)
-
フィールエクボちとせ店
約 450m(徒歩 約 6分)
-
スギ薬局南一番町店
約 280m(徒歩 約 4分)
-
千年公園
約 450m(徒歩 約 6分)


