物件情報詳細
東浦町石浜菰蓋

- 建築条件無宅地
価格
2,068万円(税込)~
- 公園近し
- 南向き
- 学校近し
- 希少
- 日当良好
- 生活便利
- 買物便利
- 通勤便利
- 通学便利
- 閑静地
- 駅近
~生活快適土地~
■ 人気の小学校も徒歩約3分と近距離です♪
■ ショッピングセンター、郵便局、クリニック等、近隣に生活施設が揃ってます♪
| 所在地 | 知多郡東浦町大字石浜字菰蓋1番41(1号地)1番192(2号地)[MAP] | 交通 | JR武豊線「石浜」駅 徒歩約17分 |
|---|---|---|---|
| 敷地面積 | 1号地:133.16㎡(40.28坪)/2号地:133.15㎡(40.27坪) | 学校区 | 片葩小学校 東浦中学校 |
| 建物面積 | - |
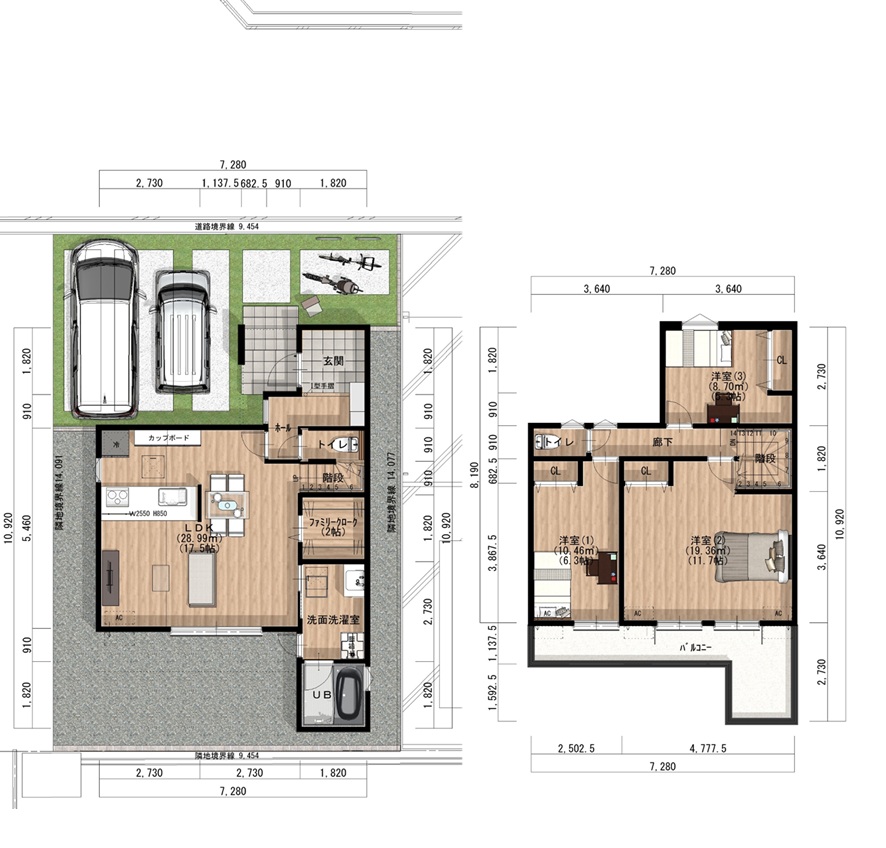
東浦町石浜菰蓋 参考プラン

敷地面積 133.15㎡/40.27坪
建築面積 54.65㎡/16.53坪
延床面積 100.19㎡/30.31坪
( 1階 50.51㎡/15.28坪 )
( 2階 49.68㎡/15.03坪 )
物件概要
| 総区画数 | 2区画 |
|---|---|
| 地目 | 宅地 |
| 用途地域 | 第一種中高層住居専用地域 |
| 建ぺい率 | 60% |
| 容積率 | 150% |
| 道路 | 北・西側公道約5.2m |
| 構造 | 木造2階建(2×4工法) |
| 売主 | 東洋地所 大府営業所 国土交通大臣(12)第2706号 |
その他
《売土地》
[1号地] 2,098万円
[2号地] 2,068万円
※建築条件付土地ではありません
※造成工事済です
[1号地] 2,098万円
[2号地] 2,068万円
※建築条件付土地ではありません
※造成工事済です
近隣施設
-
JR武豊線「石浜」駅
約1,360m(徒歩 約17分)
-
片葩小学校
約 240m(徒歩 約3分)
-
東浦中学校
約 610m(徒歩 約8分)
-
石浜保育園
約 350m(徒歩 約5分)
-
ショッピングセンターアイプラザ
約 300m(徒歩 約4分)
-
東浦石浜郵便局
約 400m(徒歩 約5分)
-
藤沢医院
約 280m(徒歩 約4分)
-
白山公園
約 70m(徒歩 約1分)




